当前位置: 主页 > 智行前沿

特斯拉申请将得州超级工厂扩建50万平方英尺

来源:车味生活    人气:1263
发布时间:2025-03-05 10:31:47

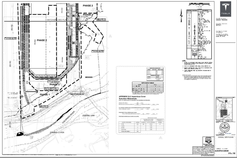
车味生活讯 据外媒报道,特斯拉首席执行官埃隆·马斯克透露,特斯拉得州新工厂比世界上任何建筑都要大,它有15个城市街区那么长。然而,尽管该厂规模庞大,得州超级工厂实际上只消耗了特斯拉在得州收购的一小部分土地。因此,特斯拉提交了一些文件,以扩大其得州工厂的General Assembly 2和General Assembly 3区域。

根据特斯拉向奥斯汀市提交的申请,扩建面积是相当可观的,占地约50万平方英尺。据悉,扩建将在现有的Giga Texas大楼的一端完成。

图片来源:得州奥斯汀市政府

考虑到特斯拉的扩建草图参考了得州工厂的General Assembly 2和General Assembly 3区域,外媒猜测即将建设的项目可能与特斯拉的汽车生产活动有关。这并不奇怪,因为特斯拉不仅打算在得州超级工厂生产Model Y,还将生产其他车辆。


图片来源:推特

马斯克此前估计,特斯拉Cybertruck和Semi等即将推出的汽车将于明年开始生产。虽然该公司尚未正式宣布Semi将在哪个工厂生产,但Cybertruck早就已确定在得州超级工厂生产。

图片来源:推特

占地50万平方英尺的扩建将为特斯拉其他项目提供额外的空间。考虑到得州工厂由几层楼组成,即将到来的扩建最终可能为特斯拉提供至少100万平方英尺的工作空间。

推荐文章